您所在的位置:
首页 > 政务公开 > 基本信息公开 > 规划信息 > 正文
兰考县富兰实业有限公司兰考国电投新能源产业园区项目(变更)规划方案公示
打印 【字体:

兰考县富兰实业有限公司项目兰考国电投新能源产业园区项目由于原规划的厂房不能满足兰考县人民政府招商入驻的企业生产需求,为确保良好的营商环境,根据企业需求对整体规划进行了调整。调整后的设计方案如下:

项目名称:

兰考国电投新能源产业园区项目(变更)

公示类别:

建设工程规划方案公示

建设单位:

兰考县富兰实业有限公司

建设单位联系电话:

13353832069

用地位置:

兰考县富士康以西

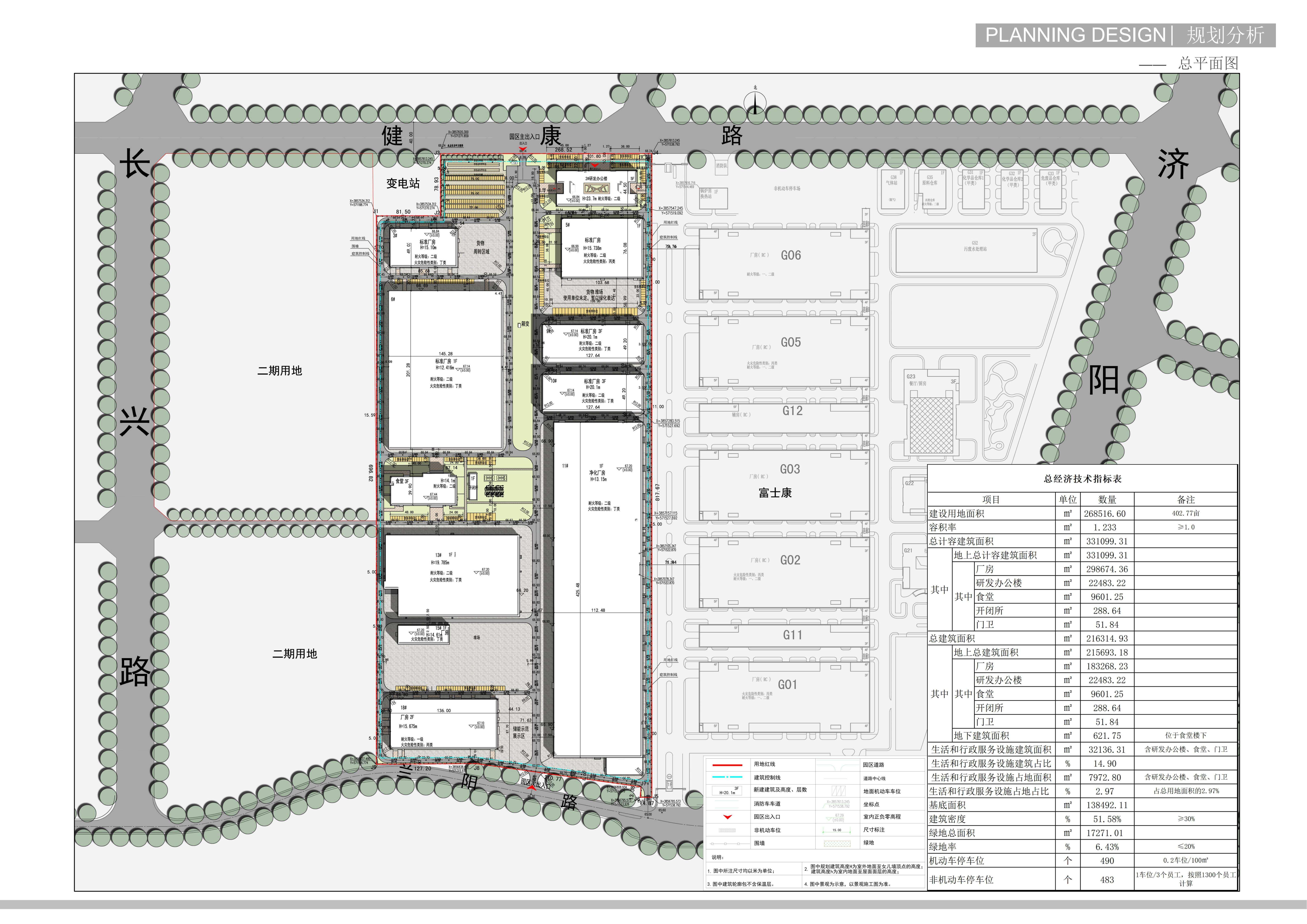
用地面积:

268516.6平方米

建筑面积:

216314.93平方米

计容面积:

331099.31平方米

建筑密度:

51.58%

容积率:

1.233

绿地率:

6.43%

机动车停车位:

490

非机动车停车位:

483

公示期限:

10

公示日期:

2025826日至 202594

经办股室

兰考县自然资源局建设工程规划股

咨询电话:

037122221611037122778522

附加说明:

查询详细内容,请出示身份证明,到我局办理相关手续后查询。依据《城乡规划法》、《行政许可法》、《河南省城市规划公示制度》等有关法律法规,特此公示。如有意见和建议,请于公示时间内向我局反馈。

详细内容:

总平面图、鸟瞰图

总平面图

兰考国电投新能源产业园区项目规划方案设计.jpg

鸟瞰图

兰考国电投新能源产业园区项目规划方案设计.jpg

扫一扫在手机打开当前页